Hydraulic Telescopic Long Stroke Multi-stage Cylinder for Agricultural machinery
Product Details
Our cylinders are built with high-yield strength steel to keep systems operating smoother, stronger and longer. Available in standard or specially designed models with help of advanced design software and manufacturing system,our cylinders incorporates quality, variety and features to meet the needs of the most demanding applications around the world.
Hydraulic Telescopic Long Stroke Multi-stage Cylinder for Agricultural machinery
Heavy duty telescopic cylinders are usually powered by oil hydraulics, telescopic cylinders are also referred to as telescoping cylinders and multi-stage telescopic cylinders.


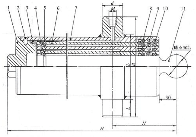
| Material : |
| Piston: 45# steel |
| Tube: 20# steel |
| Piston rod: chrome plated 45# steel |
| Cylinder cap: 20# steel |
| Cylinder base: 20# steel |
| Seal ring: famous Chinese brand or international brand |
| Max.Cylinder Bore | 300mm |
| Max.Piston Rod Dia. | 280mm |
| Max.Retract Length | 3500mm |
| Max .Stroke | Single stage cylinder 6500mm |
| Multi-stage cylinder 12000mm | |
| Max.Working Pressure | 35Mpa |
| Min.Working Pressure | 10Mpa |
| Working Pressure of Heavy-duty Cylinder | 40Mpa |
Packaging & Shipping
1. Packing: Air cushion film+ Steel Pallet or Plywood Case
2. Shipping: By sea, By air, or By express.








